Benutzerspezifische Werkzeuge

This is SunRain Plone Theme
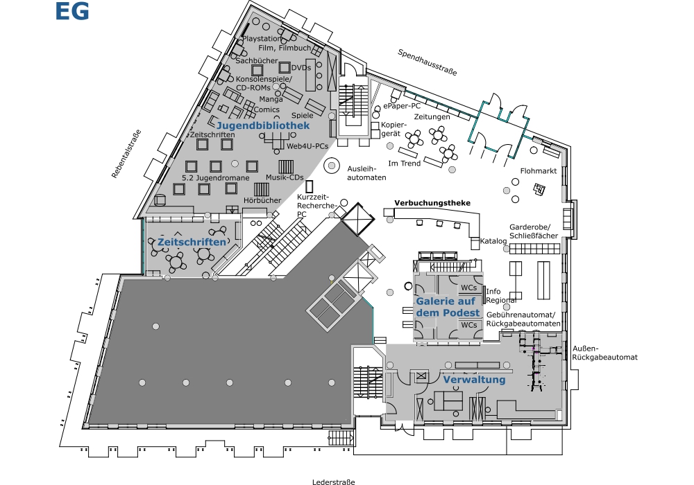
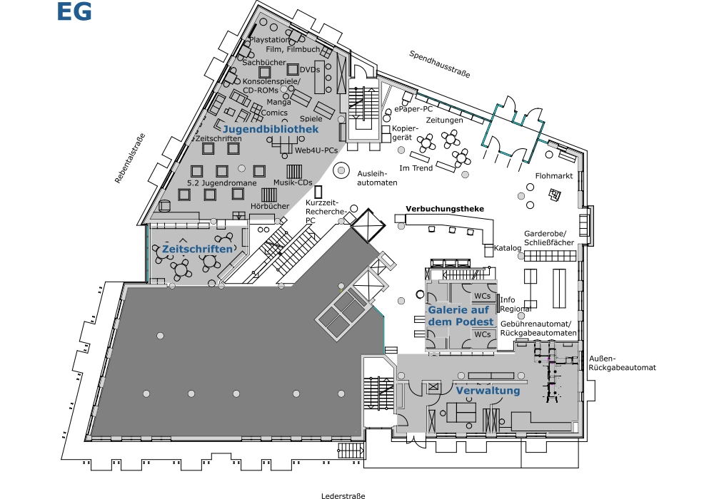
Sie sind hier: Startseite / Orientierungsbilder / EG

EG

EG
Bild in Originalgröße 253 KB | Bild anzeigen Anzeigen Bild herunterladen Download